Fotogalerie

Pohled na základnu:

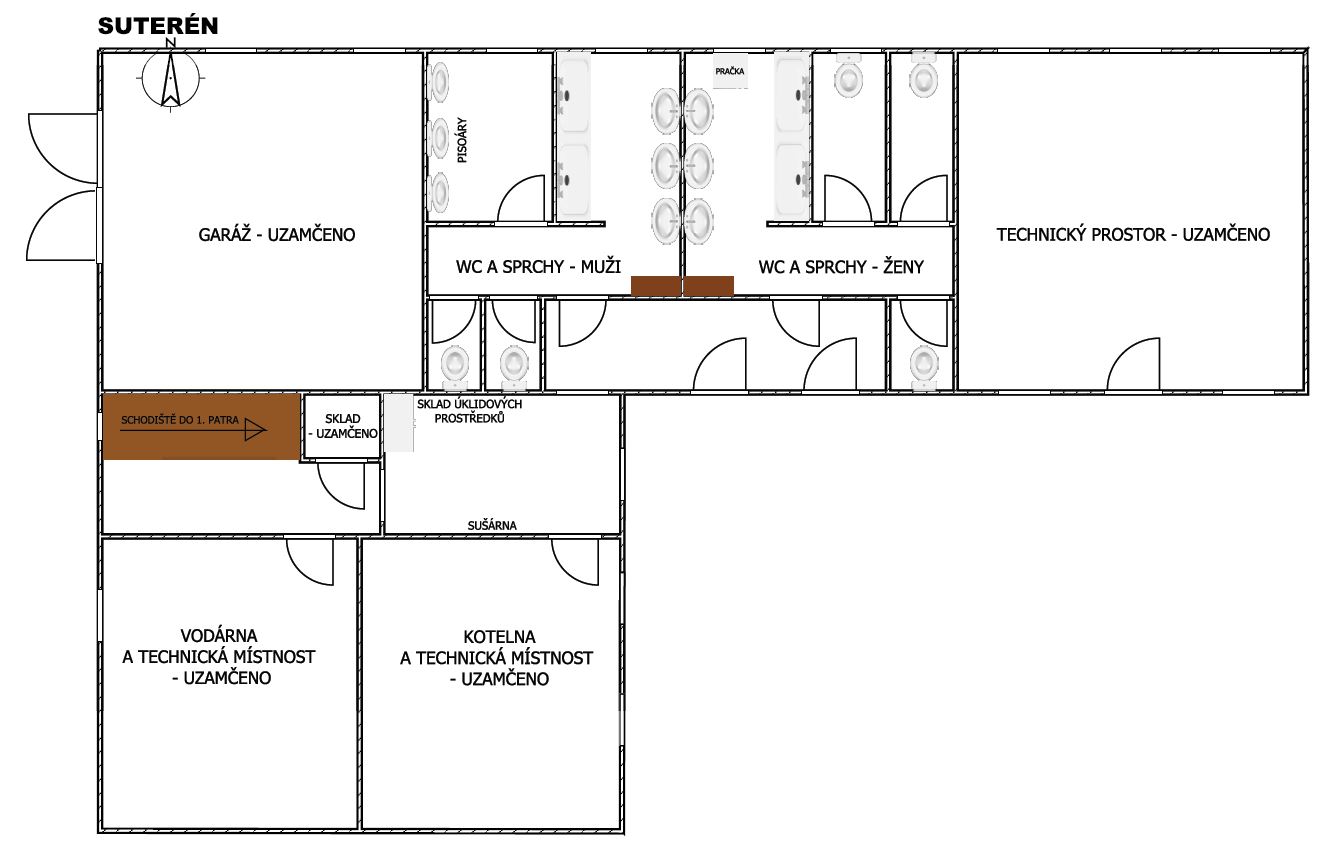
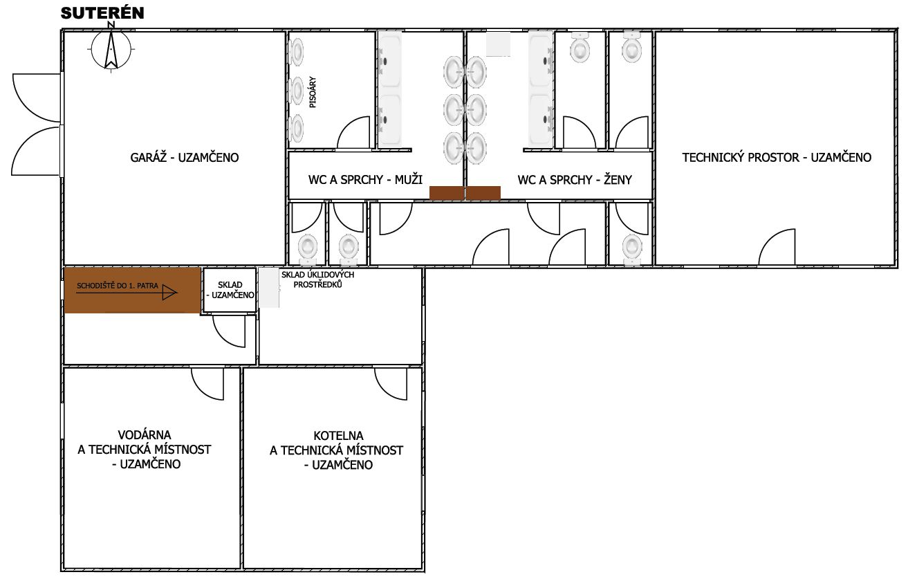
Suterén (WC, sprchy, technický prostor, sušárna):

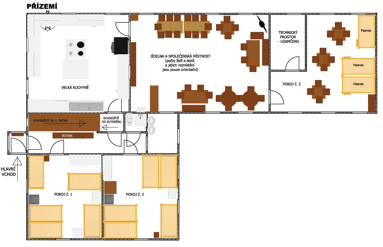
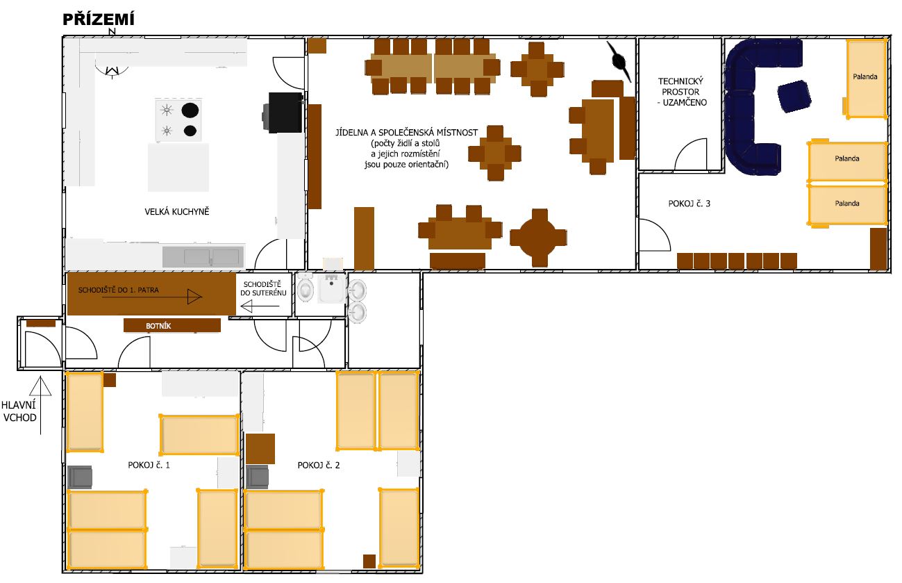
Přízemí (kuchyně, jídelna, 3 pokoje /5 + 5 + 6 (s rozloženým gaučem 8) míst/, předsíň):

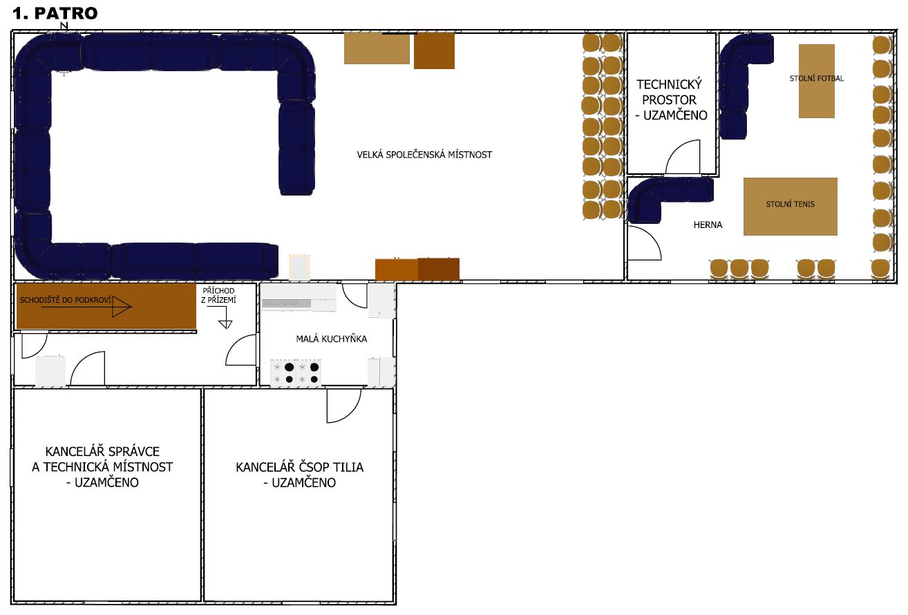
1. patro (malá kuchyňka, společenská místnost, herna):

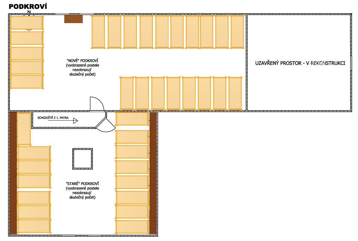
Podkroví (2 oddělené spací prostory /19 + 21 míst + 10ks matrací/):